|
簡要描述:1.介質:渣水混合物,空氣水混合物, 2.使用溫度:<400℃ 3.公稱壓力:1.0-1.6mpa 4.公稱直徑:40-600mm 詳細描述:1.該閥門適用于公稱壓力為1.0-1.6Mpa,工作溫度為<400℃的火力電站排渣系統及水利工程的灰漿排放系統管路上,切斷或者接通管路介質。 2.閥門采用單側強制密封,不但密封可靠,而且可達到密封要求。閥體材料可采用鑄鐵,碳鋼,不銹鋼以及四氟等材料,以滿足抗腐蝕耐磨等要求 3.此結構長度短,重量輕,安裝及維修都很方便 4.適用溫度:<400℃
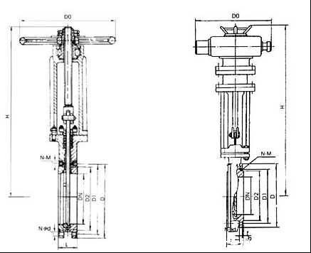
產品外形及結構尺寸示意圖

1、手輪、手柄及傳動機構均不允許作起吊用,并嚴禁碰撞。 2、雙閘板閘閥應垂直安裝(即閥桿處于垂直位置 , 手輪在頂部 )。 3、帶有旁通閥的閘閥在開啟前應先打開旁通閥(以平衡進出口的壓差及減小開啟力 )。 4、帶傳動機構的閘閥,按產品使用說明書的規定安裝。 5、如果閥門經常開關使用 , 每月至少潤滑一次。
3
4
5
|